×

Figyelmeztetés

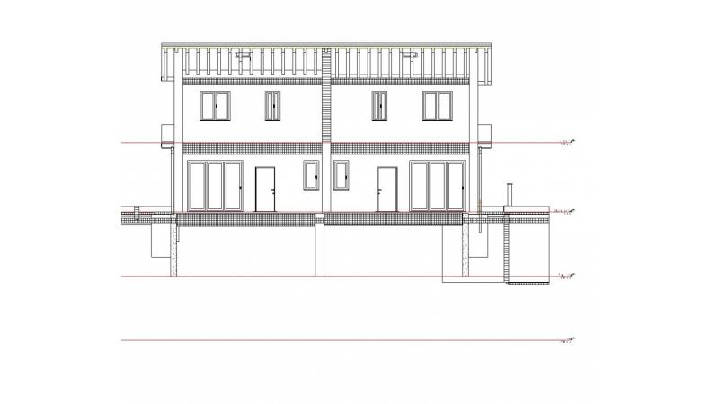
JFolder: :fájlok: Az elérési út nem mappa. Elérési út: /var/www/hosting/archline.hu/www/public/project/0/32/floormap

×

Megjegyzés

There was a problem rendering your image gallery. Please make sure that the folder you are using in the Simple Image Gallery plugin tags exists and contains valid image files. The plugin could not locate the folder: public/project/0/32/floormap

Simplify payroll management using Paycor Login anytime, anywhere
További cikkeink...
Maffi
{gallery}project/0/32/floormap{/gallery}

Tovább
Fabbricato, Lugano

Tovább
Tervgaléria

Tovább
Családi ház

"Gyakran érzem azt, hogy a világ legszebb, legcsodálatosabb munkáját végzem, hiszen felemelő érzés egy család lakókörnyezetét megtervezni,- és tudatosan nem házat említek, hanem környezetet, melynek éppúgy része maga a ház, mind annak szűkebb, és tágabb környezete, mind pedig a természetre, a  településszövetre, sőt a lakókra, az emberekre gyakorolt hatása,- egyszerre lehet az építész kreatív művész, és a logikus megoldásokat kereső mérnök.

Ez a komplexitás áthatja a tervezés egész folyamatát, látni kell a teljes megvalósulást már az első vázlat, az első látványterv stádiumában, pontosan meg kell ismerni az építtetői igényeket, szokásokat, az épített, és a természeti környezetet. A tervezés során minden vázlattervi módosítás mellé elkészítjük az épület kivitelezési költségvetését, így már az első lépéstől követhetőek a költségek, vélhetően ennek köszönhető, hogy az általam tervezett több, mint kétszáz ház rendre meg is épült.

Házaim modern hangulatúak, letisztultak, a 21. század friss gondolatvilágát tükrözik, otthonosak, könnyeden elegánsak, továbbá meggyőződésem, hogy formai, építészeti értelemben igen időtállóak lesznek."

Tovább
Tervgaléria

Tovább
Via Alessi

Tovább
Moncucco, Sondrio

Tovább
Családi ház

Tovább
Eurokon
Családi ház - Horvátország

Tovább
Lakópark

Társasházi ház mediterrán stílusban

Társasházi ház mediterrán stílusban

Tovább