Rákos Tibor építészmérnök meséli el nekünk a mátyásföldi egykori Paulheim-villa felújításának történetét, melynek terveit az ARCHLine.XP-vel készítette el.
"Az eredeti épületet Paulheim József, aki a Mátyásföldi Nyaralótulajdonosok Egyesülete Templomépítő Bizottságának elnöke volt, 1892-ben saját nyaralóként építtette.
A villaépület és utcai kerítés felújítása az eredeti állapotnak megfelelő megjelenéssel, az eredeti homlokzati anyagok legteljesebb körű újra felhasználásával, a mai energetikai és korszerű funkcionális követelményeknek megfelelve történt.
A villaépület 2013-ban került az építtető tulajdonába jelentősen leromlott állapotban. A vásárlás előtt, helyszíni bejárás után konzultáltunk a felújítással kapcsolatos várható feladatokról és költségekről.
Ezek ismeretében építtetővel közösen megfogalmazott tervezési és építési feladatok fontos eleme volt az utcai kerítés és az épület eredeti megjelenésének hű visszaállítása, az épület mai elvárásoknak és előírásoknak megfelelő energetikai felújítása, és az épület homlokzati rendjéhez illeszkedő új gépkocsi tároló épület építése.
A belső felújítási és korszerűsítési munkák során az épület eredeti alaprajzi elrendezését csak minimális mértékben változtattuk meg, egy-egy válaszfal bontásával, építésével, a mai komfort igények kielégítése érdekében. Az épület építésekor az alagsori falak nedvesség elleni szigetelést nem kaptak, ezért az egyik legfontosabb elvégzett munka a falak és alagsori padlók utólagos szigetelése. A falak vízszintesen fémlemez beütéssel és vegyi falszigeteléssel lettek ellátva. A padlók és a külső falak talaj felöli oldala ragasztott bitumenes lemez szigetelést kapott. A falakat belül teljes felületen szárító vakolattal vakoltuk.

A földszinten a belső ajtók, a kapcsolt gerébtokos ablakok belső szárnya, a helyreállítható spaletták és a könyvtár szoba falburkolata kibontással, farestaurátori munkával, az eredeti vasalatok, zárak, kilincsek rendbetételével újult meg. Három spalettát az eredeti szerkezeti minta szerint újra kellett gyártani. Az eredeti szegezett parketták kibontás után új aljzatra ragasztva kerültek vissza az egyes szobákba. Új parketta oda került ahol előtte mozaiklapos volt a helyiség. A belső gipsz, vadászjelenetes domborművek helyszíni restaurálással, a mennyezeti gipsz rozetták eredeti alapján való újragyártással lettek helyreállítva.
Az alagsorban a régi belső ajtók tönkrementek, ezért oda teljesen új festett faajtók kerültek.
Az utcai kerítés szerkezete olyan rossz állapotban volt, hogy teljes egészében vissza kellett bontani, és lábazati és pillér belső magok vasbetonos kiépítése után, az eredeti tégla- és kőanyagok felhasználásával, a kovácsoltvas elemek teljes restaurálásával lehetett visszaépíteni. A kovácsoltvas elemek rozsda és kátrány fedte felülete alól meglepően finom részletek kerültek elő, mint a kiskapu takaró-ütköző lemezének vésett mintázata. Előkerültek háborús sérülések is, egyes elemeken golyó ütötte lyukak találhatók.
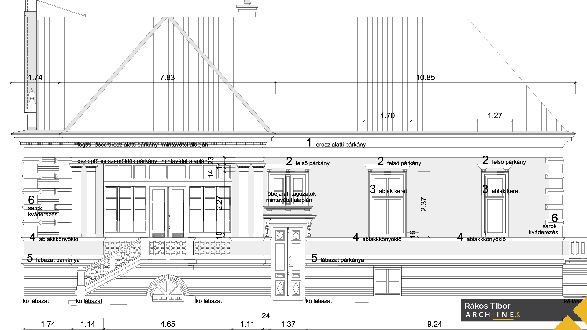
A homlokzat felújítás a meglévő tagozatok mintavételével és részletes felméréssel, fotódokumentáció készítésével kezdődött. A homlokzati elemek sok helyen hiányosak, sérültek voltak. Indokolt volt a teljes visszabontás, ez egyúttal lehetővé tette a teljes homlokzati hőszigetelést homlokzati ásványgyapottal, helyenként XPS lapokkal. A hőszigetelésre az eredeti állapotnak megfelelő megjelenéssel kerültek fel a homlokzati tagozatok, elemek.
A terasszal való bővítésnél és a gépkocsi tároló építésénél is a villaépülethez való alkalmazkodás volt a fő szempont, így az anyaghasználat és a külső formálás is visszautal a villára. A gépkocsi tároló látszó téglafala a villa padlásáról lebontott padlástéglából készült.
A tervezési munka tervanyaga az ARCHLine.XP szoftver használatával készült. A felmérési -, a tanulmány – és engedélyezési tervek készítése mellett a pallértervek is a szoftver használatával készültek. A pallértervi lapok nagy segítséget jelentettek a kivitelezési munkák során a jó minőség eléréséhez.
Számtalan részfeladathoz készültek a tervezői művezetést segítő pallértervi részletek. A legfontosabb kivitelezési feladat a homlokzati hőszigetelési munkák utáni az eredeti homlokzati rend visszaállítása volt. A homlokzati felújításkor a hőszigetelés után minden lábazati kő, minden téglaburkolat és minden tagozati gipszelem visszakerült a helyére. A pontos visszaépítést is az ARCHLine.XP szoftver tervlapjai tették lehetővé. Ezek közül válogattam néhányat a bemutató anyagba.
Az épület minőségi helyreállításával az építésben résztvevő iparosok, építőmesterek hozzájárultak ahhoz az értékmentő munkához, ami Mátyásföld jó hírét hitelesítik."
Rákos Tibor
építészmérnök